T3 with Suite + Garage + Storage in Portela | 12th Floor with Side River View and Natural Light!

498 000€

  • 4
  • 3
  • 2
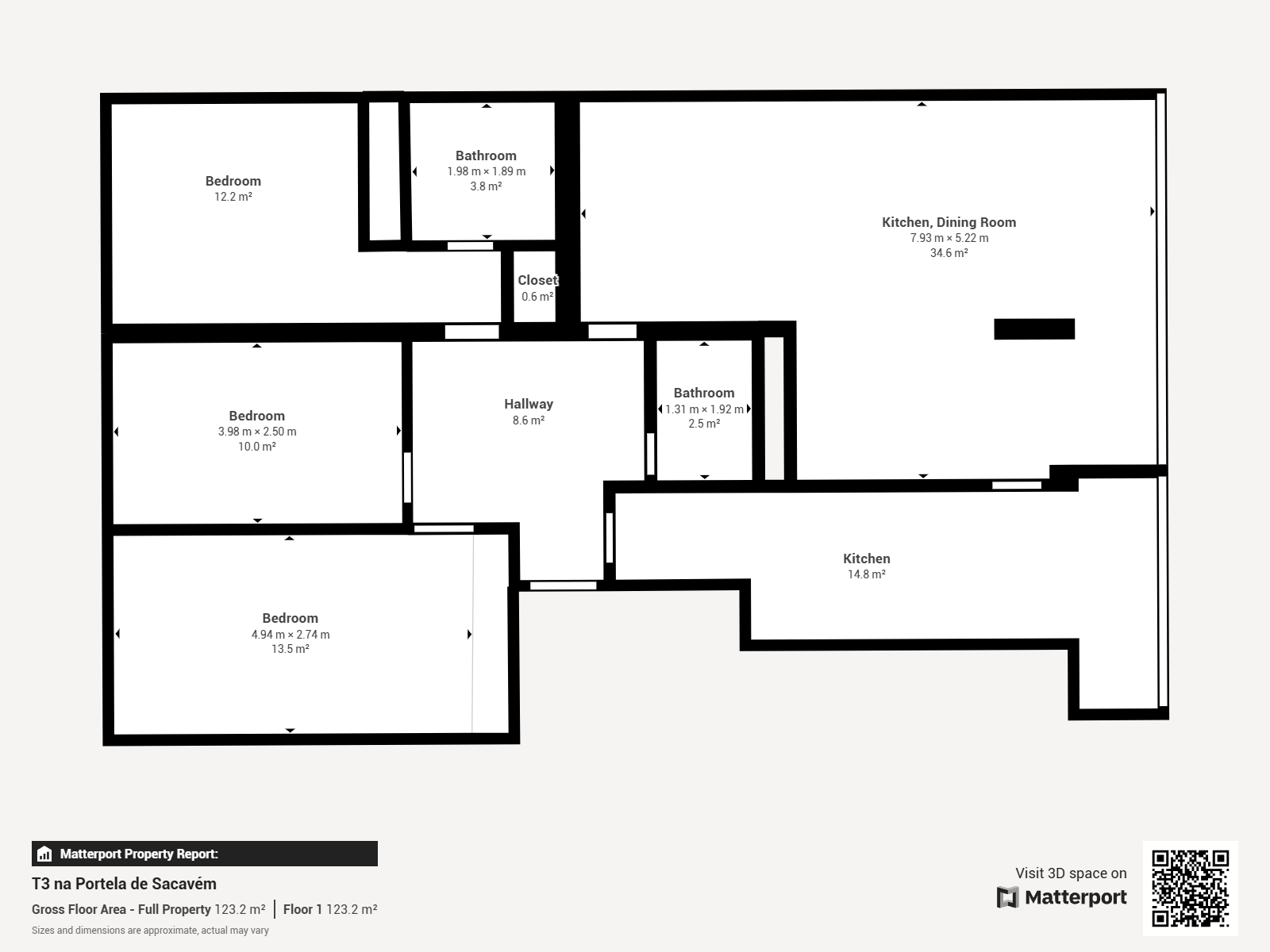
  • Usable: 110m2
  • Floor: 125m2
  • C.E.: C
  • Year: 1975
  • Solar Orientation: East, West
  • Ref: 64589-MCGO62498

Location

Lisboa, Loures, Moscavide e Portela, Portela (Portela)

Videos

VR Tour

Description

Live with space, light and quality — on Lisbon’s doorstep.

Discover this stunning three-bedroom flat, located in one of Greater Lisbon’s most complete and well-connected residential areas. Just minutes from the city centre, this property offers fast access to major roads, efficient public transport, and immediate proximity to Lisbon Airport — a strategic location for those who value mobility without giving up peace.

Fully renovated in 2008, including multilayer plumbing and updated electrics, the flat combines modern comfort with a functional and circular layout. Its excellent sun exposure floods every room with natural light, while the partial side view of the River Tagus adds a daily dose of inspiration.

With three bedrooms, a spacious living room, a fully equipped kitchen, a private parking space, and a storage room, this is the ideal home for anyone seeking more from life — more light, more space, and more quality.

Key Features:
✔ 125m² Gross Private Area
✔ 3 bedrooms (1 en-suite with Sanindusa bathtub)
✔ 2 bathrooms with Roca finishes
✔ Generous living room with lounge and dining areas
✔ Fully equipped MOB kitchen with oven, ceramic hob, microwave, dishwasher, washing machine, fridge and Silestone worktop
✔ 100L Ariston water heater
✔ Wooden flooring throughout (except bathrooms and kitchen)
✔ Electric thermal shutters, double glazing, pre-installation for A/C in the living room
✔ Private parking space in the garage
✔ Storage room on the building’s top floor
✔ Outdoor parking (front and rear patios)
✔ Building with caretaker and two lifts
✔ Exceptional natural light throughout the day

Premium location — this neighbourhood is a real privilege:
- Quick access to 2ª Circular, A1, A8, CRIL, CREL, Vasco da Gama Bridge, Parque das Nações and Lisbon Airport
- Just 12 minutes on foot from Moscavide Metro Station
- Portela Shopping Centre with all the services you need: shops, restaurants, pharmacy, clinics and more
- Excellent schools, nurseries and kindergartens (public and private)
- Well-kept green areas, several children’s playgrounds and safe zones for family walks
- Leisure and sports facilities: football pitches, tennis courts, municipal swimming pool and gyms
- Next to a pizza kiosk (yes, that counts!)
- Even your spiritual life is taken care of with a nearby church and active community

This isn’t just a flat. It begins a new chapter — more practical, peaceful, and fulfilling.
Book your visit today and come feel right at home.

Attributes

  • Double glazed windows
  • Concierge
  • City View
  • Equipped Kitchen
  • Elevator
  • Living Room
  • River views
  • Pets Allowed
  • Storage area
  • Parking Included
  • Outdoor parking
  • Marquee
  • Pre-installation of Air Conditioning
  • Suite
  • Good Solar Exposure
  • Electric blinds
  • Built-in wardrobe
  • Garage (Box with automatic gate)

Divisions

Blueprints

Floor name: House Floor 0

Division Area Note
Suite
Bedroom
Bedroom
WC
Entrance Hall
Kitchen
Room
Marquise
Under Stair Storage
Parking